obsah
|
zápatí
CENTRÁLNÍ NÁKUP KRÁLOVÉHRADECKÉHO KRAJE
Královéhradecký kraj
www.ezak.cz
Pro veřejnost
Informace zadavatele
Profily zadavatelů
Upozorňování na nové VZ
Předběžné tržní konzultace
Předběžné tržní konzultace
Zadávací řízení
Předběžná oznámení
Veřejné zakázky
Vyhledávání
DNS
Přihlášení
Přihlásit se
Registrace
Test nastavení prohlížeče
Zapomenuté heslo
Registrovat dodavatele
GDPR
Agregátor zakázek:
FEN
FEN CDD
navigace
|
zápatí
hlavní stránka
»
veřejné zakázky
»
RTG přístroj skiagrafický plně digitální se stropním závěsem včetně vertigrafu pro Oblastní nemocnici Náchod
»
Vysvětlení / Doplnění / Změna zadávací dokumentace
Bezpečnostní upozornění
x
Blíží se konec Vašeho sezení. Pokud neprovedete v následující minutě žádnou akci, budete automaticky odhlášen(a).
x
x
x
Přijatá zpráva - vysvětlení, doplnění, změna dokumentace
Zadávací řízení
RTG přístroj skiagrafický plně digitální se stropním závěsem včetně vertigrafu pro Oblastní nemocnici Náchod
Odesílatel
Ivona Marčišin
Organizace odesílatele
Královéhradecký kraj [IČO: 70889546]
Příjemce
Všichni (včetně veřejnosti)
Datum
24.03.2020 17:28:09
Předmět
Vysvětlení / Doplnění / Změna zadávací dokumentace
dodatečné informace č. 2
Přílohy
DI č. 2.pdf
(441,62 KiB)
Př.č. 2_Kupní_ smlouva_RTG_DI č. 2.docx
(65,87 KiB)
Př.č. 3_Servisní smlouva_DI č. 2.docx
(56,13 KiB)
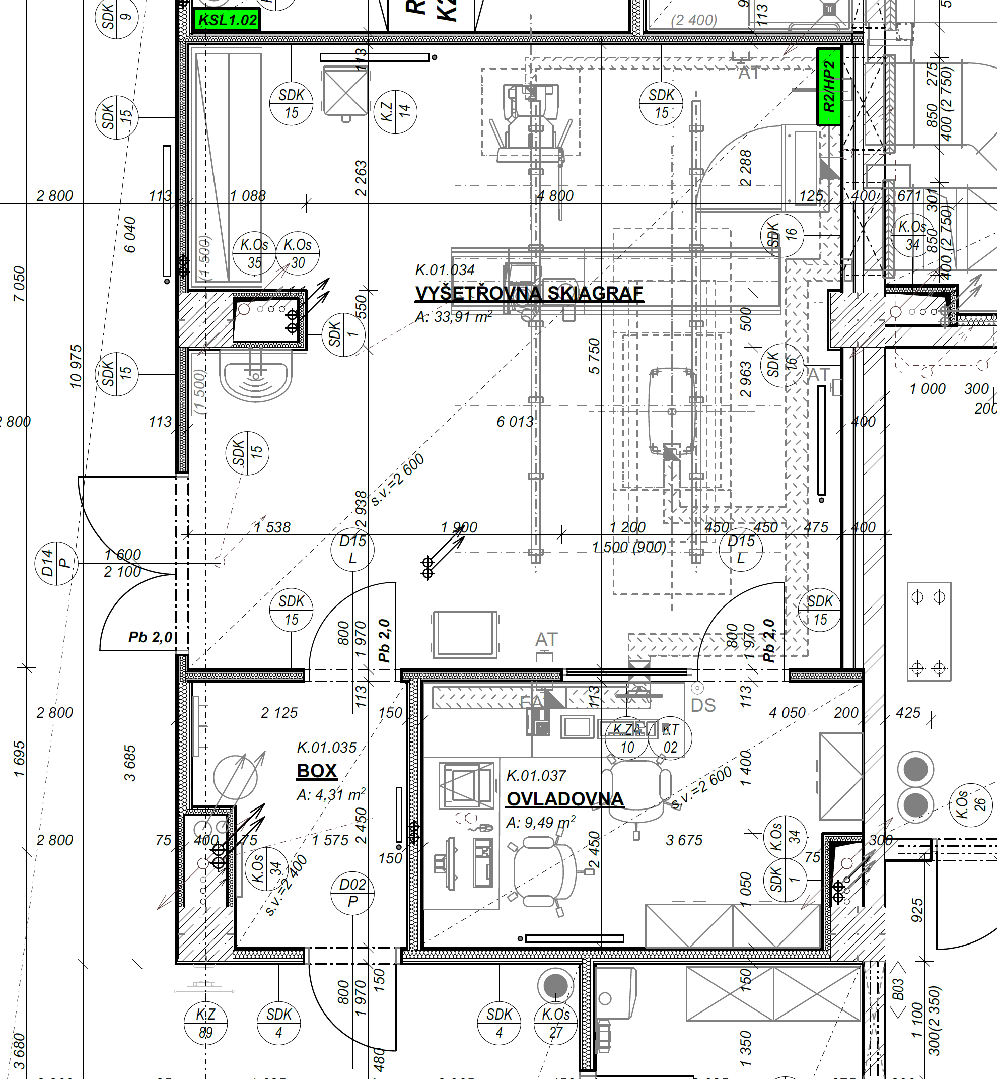
p01b - RTG - Úprava vyšetřovny skiagrafu.pdf
(80,05 KiB)
Výřez z arch-stavebního řešení - Vyšetřovna skiagraf.png
(674,61 KiB)
navigace
|
obsah
2006 – 2025 © Královéhradecký kraj
Zpracování osobních údajů
Prohlášení o přístupnosti
Cookies
Manuály
QCM - o software