navigace |
zápatí
Bezpečnostní upozornění
x
Blíží se konec Vašeho sezení. Pokud neprovedete v následující minutě žádnou akci, budete automaticky odhlášen(a).
Zadávací dokumentace
Zadávací řízení:
Domov důchodců Černožice - Asistenční systém
Informace o dokumentu
| Název: |
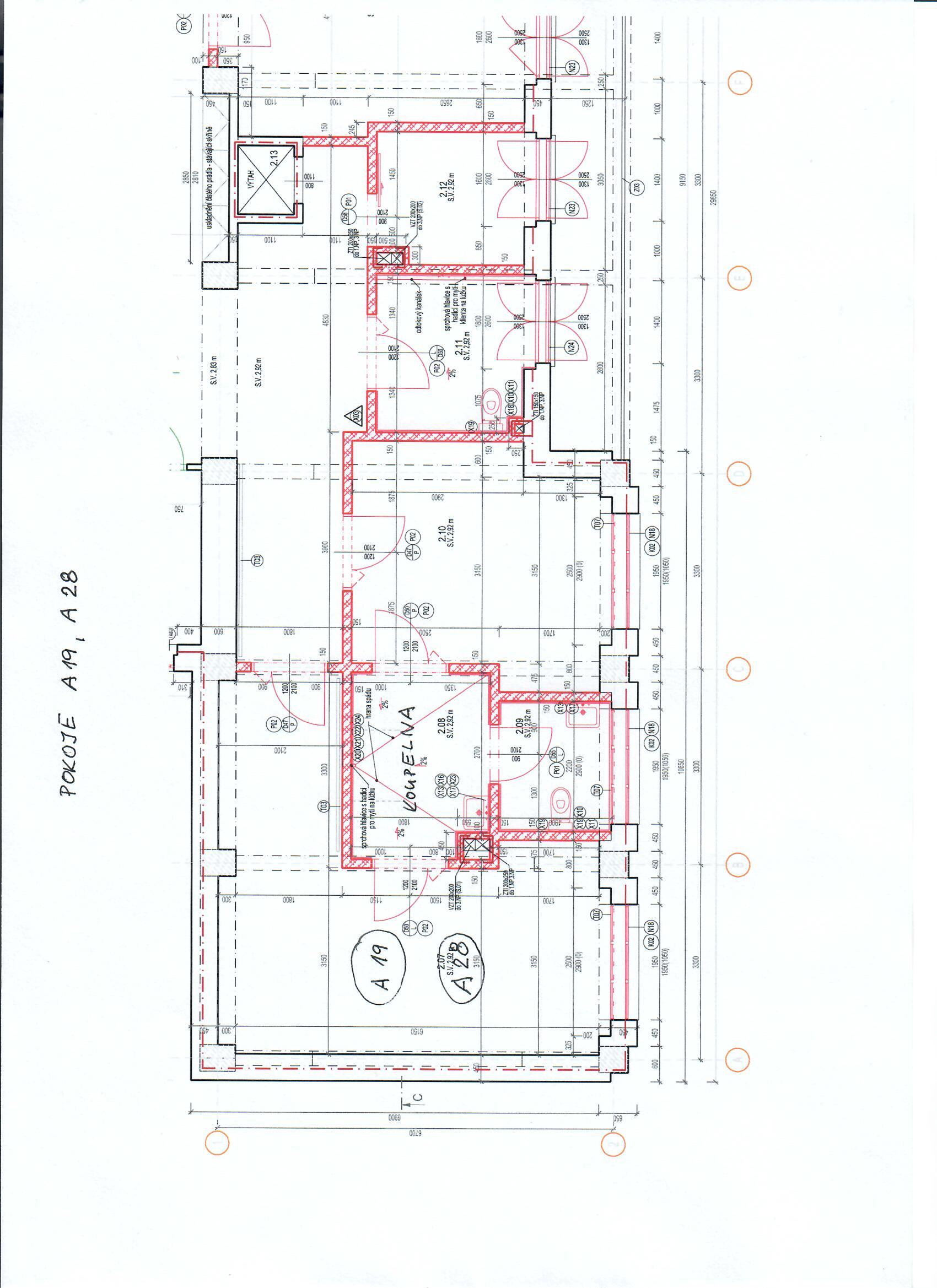
Schéma pokojů A19 a A28 |
| Popis: |
|
Aktuální verze souboru
| Jméno souboru: |
Pokoje A19, A28.jpg
|
| Velikost: |
351,34 KiB
|
| Aktuální verze souboru: |
08.03.2018 11:11:03 |
| Otisk MD5: |
88e922cdaecea404191eda89be962fe4 |
| Otisk SHA256: |
12f3849bd38a10e37a7e846228a15407e633f5ddfd0cd03612b517388576b345 |
Historie souboru
| Datum |
Název |
Popis |
Typ dokumentu |
Jméno souboru |
Velikost |
08.03.2018 11:11:03
|
Schéma pokojů A19 a
A28
|
|
zadávací dokumentace
|
Pokoje A19, A28.jpg
|
351,34 KiB
|
navigace |
obsah