navigace |
zápatí
Bezpečnostní upozornění
x
Blíží se konec Vašeho sezení. Pokud neprovedete v následující minutě žádnou akci, budete automaticky odhlášen(a).
Zadávací dokumentace
Zadávací řízení:
Domov důchodců Černožice - Asistenční systém
Informace o dokumentu
| Název: |
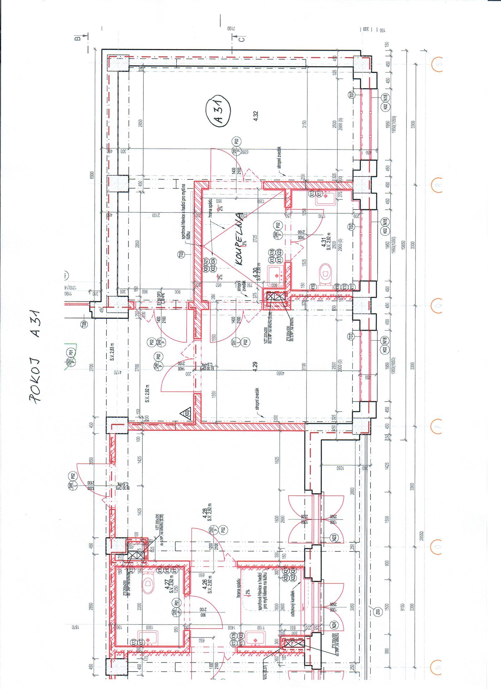
Schéma pokoj A31 |
| Popis: |
|
Aktuální verze souboru
| Jméno souboru: |
Pokoj A31.jpg
|
| Velikost: |
406,48 KiB
|
| Aktuální verze souboru: |
08.03.2018 11:09:32 |
| Otisk MD5: |
3da06df54445498a96f1d16eb7cca98b |
| Otisk SHA256: |
88b44fdbd61d733e7ffa4851a73aa7040d4bce147670db7dda7553cb242aef4f |
Historie souboru
| Datum |
Název |
Popis |
Typ dokumentu |
Jméno souboru |
Velikost |
08.03.2018 11:09:32
|
Schéma pokoj A31
|
|
zadávací dokumentace
|
Pokoj A31.jpg
|
406,48 KiB
|
navigace |
obsah